Struktur beibehalten


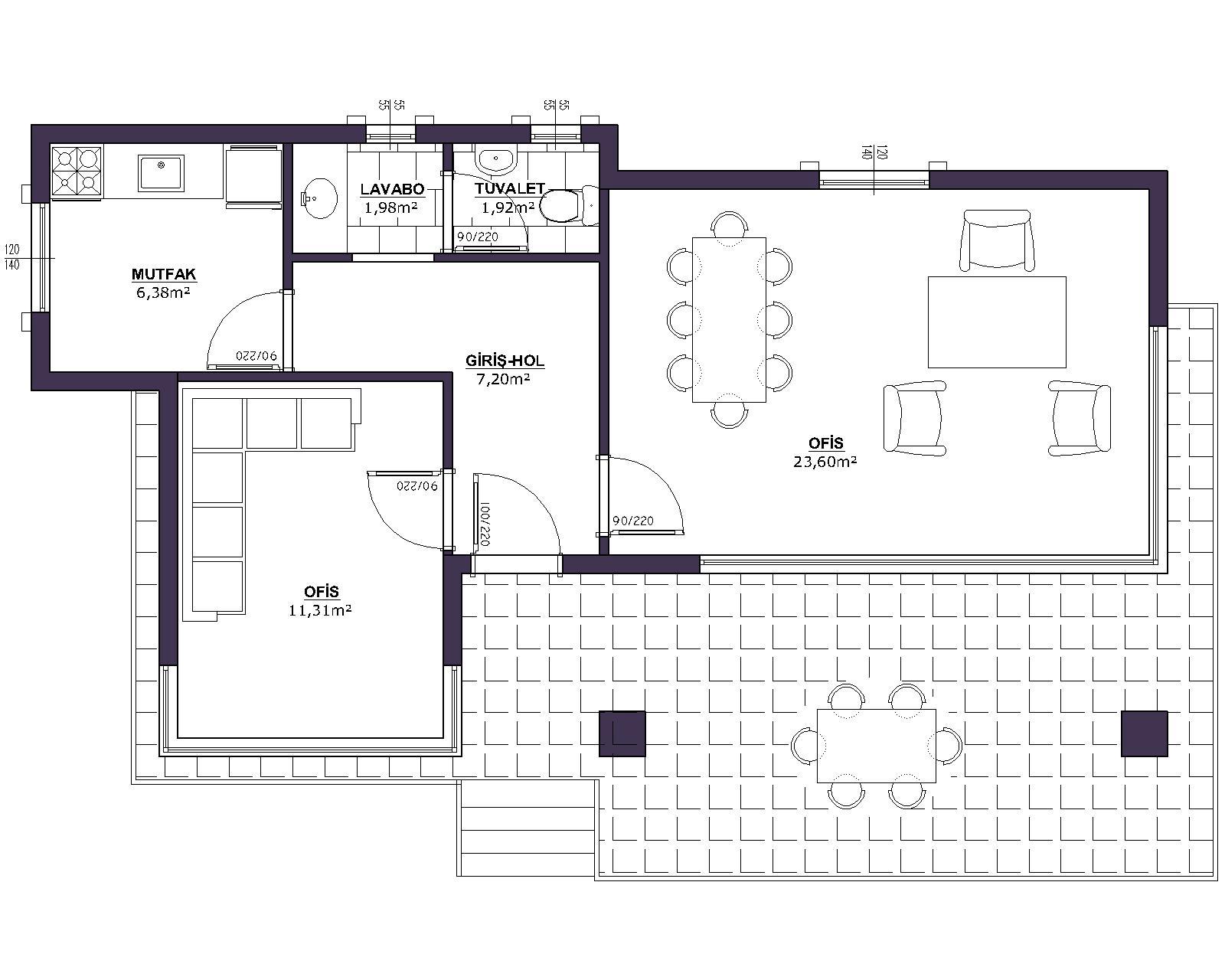
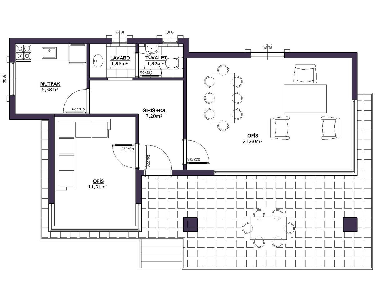
The photo presents a sophisticated 3D floor plan of a modern, high-tech office building, rendered in crisp, high-quality detail. The interior spaces are delineated with clean lines and a sense of spaciousness, suggesting a professional and chic environment. The kitchen area, labeled "MUTFAK," is compact yet appears well-equipped, adjacent to a functional bathroom suite comprising a "LAVABO" and "TUVALET." A central "GİRİŞ-HOL" serves as a nexus, leading to different zones. One significant area is a large "OFİS" (23.60m²) furnished with a commanding desk and chairs, and a separate meeting space with a long dining table surrounded by chairs. Another "ofis" (11.31m²) is furnished with a sectional sofa, indicating a more relaxed work or lounge area. The exterior features are depicted as a meticulously tiled patio area, complete with an outdoor dining set, perfect for enjoying pleasant weather. Particular attention is paid to door swings, thoughtfully ensuring clear pathways and preventing any potential obstructions from furniture placement. The overall impression is one of a well-designed, contemporary office space that balances functionality with aesthetic appeal.