ReRender

Einfamilienhaus,
Industriell Schickes Stadthaus
Original
Source Image
Hochgeladen
Gerendert(1088x768)
source
3.46%
Result Images
Result Images
Result Images

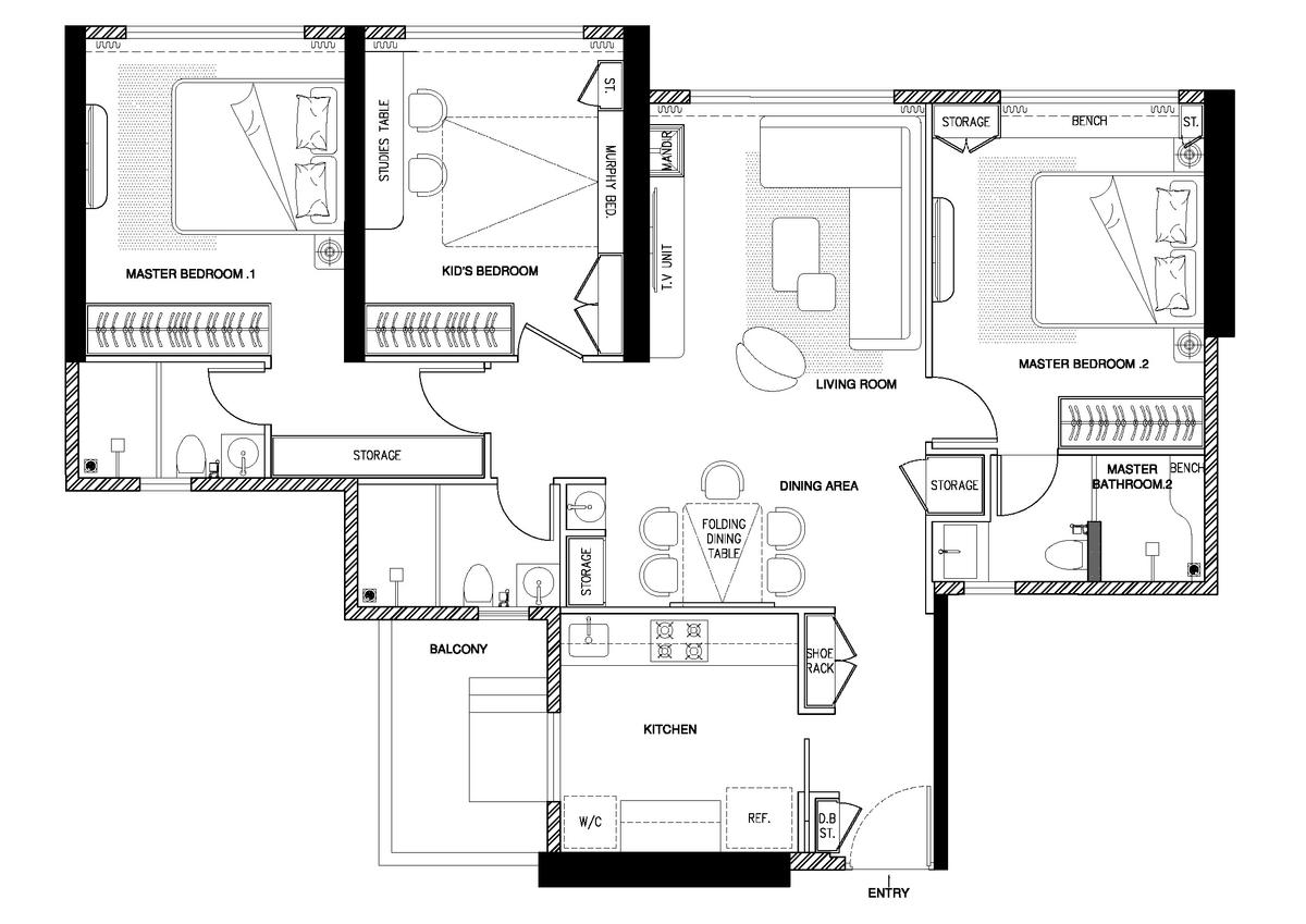
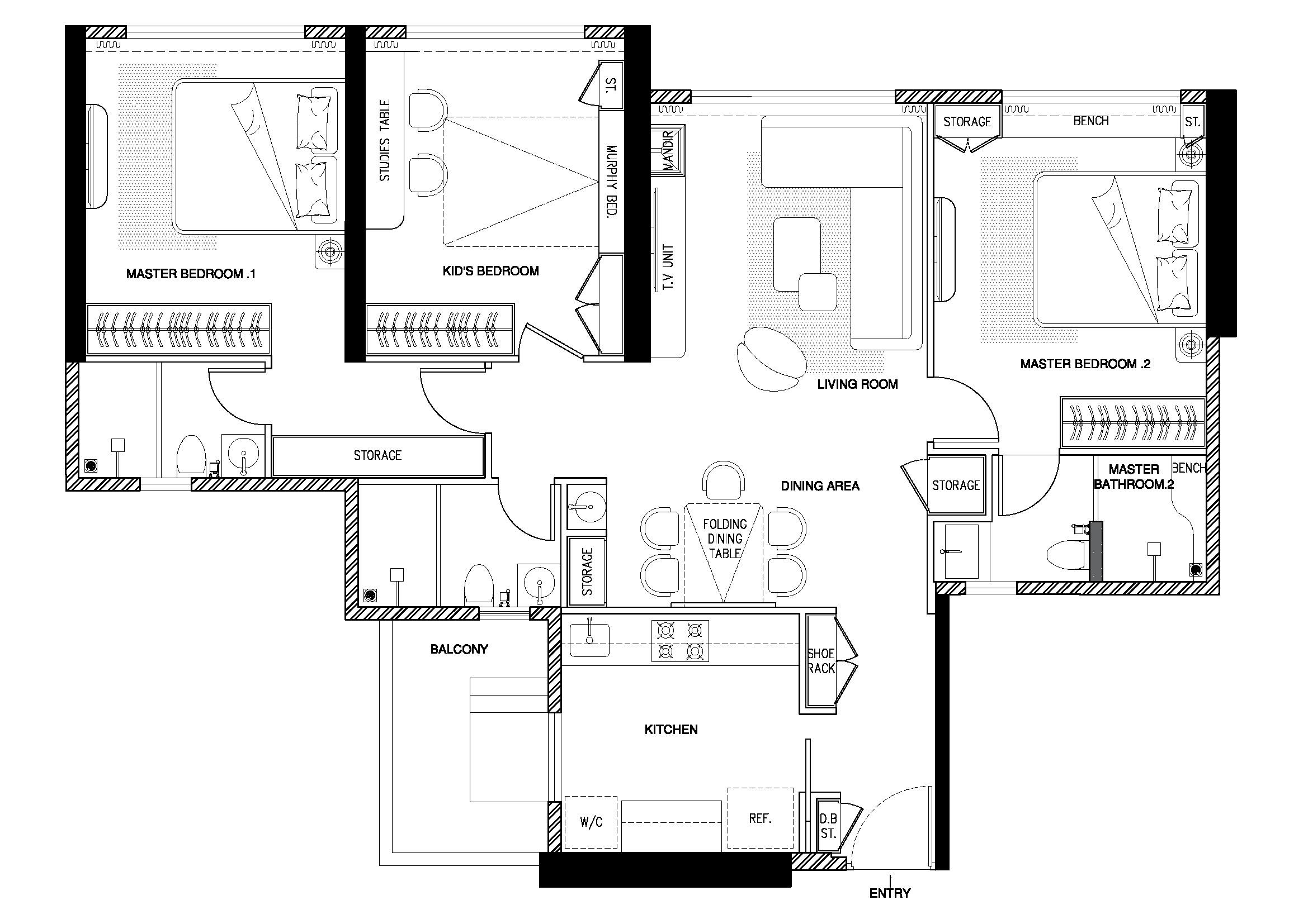
An incredibly lifelike, richly detailed, photorealistic aerial interior floorplan photo of a modern, single-family home with an industrial chic townhouse aesthetic. The scene is illuminated by clean, evenly distributed overhead lighting, creating a bright and functional atmosphere. Captured with a high-angle lens, emphasizing the spatial layout and interconnectedness of the rooms within the townhouse. The composition highlights the distinct zones: two master bedrooms, a children's bedroom with a Murphy bed, a spacious living room with a sectional sofa and minimalist coffee table, a dining area featuring a folding table, and a well-equipped kitchen. The industrial chic elements are subtly conveyed through the implied materials and defined spaces. Textures like polished concrete or brushed metal would likely be suggested by the clean lines and stark contrasts. The perspective showcases the flow from the entry through the various living spaces to the private bedrooms, with clear separation between functional areas. Additional details like ample storage units, well-placed bathrooms, and a small balcony integrated into the design contribute to the overall sense of a thoughtfully designed urban dwelling. The depth of field is uniform, allowing every detail of the floorplan to remain sharp and visible.


Use the extensionSketchUp
Follow usInstagramYouTubeLinkedIn
Join the discussionReddit